RH-11W Приточно-вытяжной агрегат с камерой смешения MIRINE с водяным нагревателем

Гарантия 36 месяцев
Под заказ
На сайте указаны Рекомендованные Розничные Цены. Размер Вашей скидки и окончательную стоимость оборудования уточняйте у наших менеджеров
Запросить цену
Характеристики Параметры
Бренд MIRINE
Крышные вентиляционные агрегаты с камерой смешения MIRINE RH предназначены для вентиляции и воздушного отопления помещений с высокими потолками. При смешении наружного и рециркуляционного воздуха происходит возврат тепла. Система управления постоянно оптимизирует количество подаваемого свежего воздуха, рассчитывая его таким образом, чтобы минимально задействовать дополнительный подогрев или охлаждение. Уставка минимального количества свежего воздуха задается пользователем.

Система вентиляции состоит из нескольких независимых агрегатов и не требует подсоединения воздуховодов. Монтаж и обслуживание блоков выполняется со стороны крыши. Благодаря высокой производительности и эффективному воздухораспределению агрегаты обслуживают большую площадь. По сравнению с другими системами вентиляции и отопления для поддержания необходимых параметров требуется меньшее количество агрегатов.

Основные функции: 
  • Обогрев (при подключении к системе центрального отопления или к котельной)
  • Подача свежего воздуха
  • Удаление вытяжного воздуха
  • Рециркуляция
  • Смешение наружного и рециркуляционного воздуха
  • Воздухораспределение
  • Фильтрация воздуха

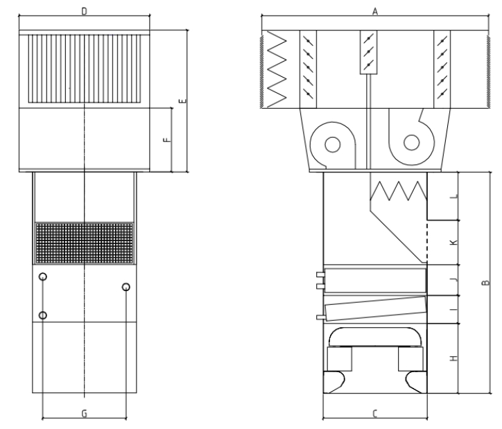
Конструкция и габаритные размеры MIRINE RH-11

Агрегаты MIRINE RH состоят из двух блоков: верхней и нижней части. Отдельные секции агрегата крепятся болтовыми соединениями и в случае необходимости могут быть легко демонтированы.
  


1. Воздухозаборные метеозащитные жалюзи 
2. Фильтр на стороне свежего воздуха 
3. Клапан наружного воздуха 
4. Гравитационный клапан 
5. Инспекционная панель приточного вентилятора 
6. Приточный центробежный вентилятор 
7. Рециркуляционный клапан 
8. Привод клапана свежего воздуха 
9. Клапан выброса воздуха 
10. Решетка на стороне выброса воздуха 
11. Вытяжной центробежный вентилятор 
12. Инспекционная панель вытяжного вентилятора 
13. Фильтр на стороне вытяжного воздуха 
14. Вытяжная решетка 
15. Водяной нагреватель                           
16. Звукоизолирующий колпак 
17. Направляющие лопатки

Агрегаты MIRINE RH включают в себя следующие компоненты:
  • Верхний блок: самонесущий корпус верхнего блока выполнен из листовой стали с покрытием из алюминиево-цинкового сплава. Высококачественная внутренняя теплоизоляция выполнена из огнестойкого материала.
  • Секция фильтра: агрегат любого типоразмера может комплектоваться секцией фильтра разной длины (3 варианта: короткая/средняя/длинная). 
  • Секция воздухонагревателя/воздухоохладителя: вывод соединительных патрубков теплообменника возможен с любой стороны секции (обычно под вытяжной решеткой).
  • Воздухораспределитель Air-Distributor: вихревой воздухораспределитель с регулируемыми направляющими лопатками обеспечивает равномерное распределение воздушного потока и отсутствие сквозняков на всей обслуживаемой площади.
В зависимости от положения лопаток (17) воздух может подаваться в помещение строго вертикально, в виде конуса или горизонтально.

Модель агрегатаRH-11
Расход воздуха, м.куб/час11000
Мощность эл.двигателя, кВт3,70
Вес, кг680
Габаритные размеры, мм
A2400
B1900
C1100
D1380
E1500
F670
G880
H550
I-
J350
K448
L552

Секция воздухораспределения MIRINE Air-Distributor

Воздухораспределитель MIRINE Air-Distributor является основным элементом секции. Система управления непрерывно регулирует угол разворота лопаток, учитывая расход воздуха, то есть скорость вентилятора, высоту монтажа и разницу температур воздуха на вытяжке и притоке. В зависимости от положения лопаток воздух может подаваться в помещение строго вертикально, в виде конуса или горизонтально, что обеспечивает:
  • Максимальную зону покрытия агрегатами MIRINE Air-Distributor
  • Отсутствие сквозняков в помещении
  • Минимальную стратификацию температур и низкие эксплуатационные расходы

Режимы работы MIRINE R-Type с камерой смешения

1. Кондиционирование и вентиляция   
Агрегат подает свежий воздух в помещение, а благодаря воздухонагревателю/воздухоохладителю обеспечивается поддержание оптимальной температуры. Регулирование производительности вентилятора и температуры производится в автоматическом или ручном режимах. Благодаря регулированию положений лопаток воздухораспределителя, обеспечивается горизонтальное распределение охлажденного воздуха.

2. Кондиционирование и рециркуляция   
Агрегат работает в режиме 100% рециркуляции, при этом обеспечивается поддержание заданной температуры воздуха.

3. Комбинированный режим   
Режим при котором обеспечивается кондиционирование помещения с подмесом свежего воздуха.


Схема воздухораспределения при нагреве

Агрегат, подключенный к системе центрального теплоснабжения, обеспечивает обогрев помещения. Регулирование производительности вентилятора и температуры производится в автоматическом или ручном режиме. Благодаря регулированию положений лопаток воздухораспределителя, обеспечивается вертикальное распределение нагретого воздуха, в результате чего обеспечивается быстрый прогрев помещения.

Обращаем ваше внимание!

Вся предоставленная на сайте информация, касающаяся рекомендованных розничных цен, спецификаций и технических
характеристик носит информационный характер и ни при каких условиях не является публичной офертой.